Skip to content Skip to sidebar Skip to footer

Ada Shower Stall

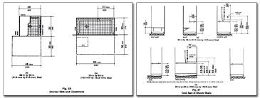
Ada Shower Stall. Ada compliant freedom transfer shower stalls are the informed choice for ada bathrooms. The ada requires accessible stalls have an approach area in front of the stall at least 48 inches long by 36 inches wide.

62 X 32 Ada Roll In Shower Linear Trench Drain Left Hand
62 X 32 Ada Roll In Shower Linear Trench Drain Left Hand from www.freedomshowers.com
Shower stalls & kits └ showers, baths & parts └ bath └ home, furniture & diy all categories antiques art baby books, comics & magazines business. Ada compliant freedom transfer shower stalls are the informed choice for ada bathrooms. Units are designed to meet current codes.

All american waste supplies an extensive array of mobile shower trailers, many facilities come with toilet restroom stalls, running water sinks and a variety of ada shower stall with accessible toilet.

Accessabath ada compliant shower systems. Shower stalls with seats are great for shaving or simply storing soaps and shampoos. Ada grab bar requirements for shower stalls, bath tubs, and toilet stalls. Accessabath ada compliant shower systems.


Post a Comment for "Ada Shower Stall"